Добро пожаловать на http://vipplan.ru

Випплан Фрязино - это тысячи проектов домов в нашем каталоге!

Вы всегда сможете найти для себя проект дома вашей мечты! Даже если этого не случилось, мы готовы в любую минуту предложить проект индивидуального дома.

Забыли пароль?
Вы еще не регистрировались?

Перейдите по ссылке ниже на страницу регистрации.

Регистрация...

Внимание!!!

В проектную документацию могут быть внесены изменения любой сложности, в соответствии в Вашими пожеланиями!

Полезные статьи

Типы и разновидности кровли

Кровля состоит из сплошного настила, стяжки и обрешетки, поддерживающих стропила и несколько слоев изоляции, призванных уберечь кровельное пространство от негативного воздействия пара и влаги....

Проекты быстровозводимых домов и коттеджей в Фрязине

Некоторые люди до сих пор считают, что быстровозводимые дома представляют собой безликие, недолговечные, однотипные строения. Эти утверждения не соответствуют действительности. На данный момент, строительные технологии шагнули вперед и дома «быстрого приготовления» считаются эталоном комфорта, уюта и даже выделяются, в архитектурном плане, на фоне дорогих кирпичных коттеджей. Быстровозводимые дома не дорогие и изготавливаются в кратчайшие сроки....

Проекты домов и коттеджей > Каталог проектов домов > Проект одноэтажного коттеджа Vg165

Проект одноэтажного коттеджа Vg165

Проект одноэтажного коттеджа
Зарегистрируйтесь

Проект № Vg165


Техническое описание
Общая площадь: 86 м2
Высота здания: 7.87 м
Размеры дома: 12м×10м
Кол-во комнат: 4
Цокольный этаж: нет
Гараж: нет
Мансарда: нет

Kонструкция
Фундамент: Буронабивной (свайно-ростверковый). Ростверк- монолитный, ж/б
Отделка дома: Облицовочный кирпич
Материал стен: Газобетонный блок и облицовочный кирпич

Архитектурный раздел
Конструктивный раздел
АР+КР - 44 000 (Со скидкой 20%)

Проект индивидуального одноквартирного одноэтажного жилого дома с размерами здания  12,02х9,82м. 
Наружная отделка здания – облицовочный кирпич
Фундамент - буронабивной (свайно-ростверковый). Ростверк- монолитный, ж/б.
Наружные стены – газобетонный блок и облицовочный кирпич. 
Внутренние стены, перегородки – газобетон.
Пол первого этажа – плиты перекрытия.
Крыша -многоскатная. Материал кровли - металлочерепица.
Окна - металлопластиковые, выполненные по индивидуальному заказу. 
Лестница  выполняется  по индивидуальному заказу. 
  
Технико-экономические показатели
 
Общая площадь помещений 85,7 м2
Этажность - 1
Высота здания - 7,87 м от отметки ур. земли до конька

Генплан застройки участка / Паспорт проекта 7000 руб / 10000 руб
Инженерный раздел (полный) 50000 руб
Смета на строительство 25000 руб
Теплотехнический расчет материалов стен Бесплатно
Стоимость проекта со незначительнми изменениями 52850 руб
Стоимость проекта со средними изменениями* 59300 руб
Стоимость проекта со значительными изменениями** 61000 руб

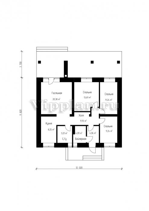
План первого этажа


Тамбур - 4,06 м2
Холл - 9,93 м2
Гостиная 20,38 м2
Спальня - 13,69 м2
Спальня - 11,24 м2
Спальня - 9,24 м2
Кухня - 8,25 м2
С/у - 5,01 м2
Бойлерная - 4,09 м2
Проект одноэтажного коттеджа Проект одноэтажного коттеджа Проект одноэтажного коттеджа Проект одноэтажного коттеджа
Внесение изменений и привязка к участку строительства

В любой из проектов от компании VIPplan - Фрязино по вашему желанию могут быть внесены изменения в материалы стен, материалы наружной отделки дома, а также будет произведена адаптация проекта под конкретный регион строительства (с учетом грунтов региона, геологических особенностей вашего участка и местных климатических условий) - БЕСПЛАТНО !!! (кроме проектов со скидкой и проектов наших партнеров).

Любой из проектов, размещенных на сайте fryazino.vipplan.ru мы можем выполнить из требуемых вам строительных материалов: ячеистый бетон (газобетон, пеноблок), керамоблок, кирпич, шлакоблок, бетонный блок, дерево (брус, клееный брус), каркасная технология (деревянный каркас, металлокаркас (ЛСТК)).

Фасад дома и его наружную отделку так же возможно выполнить с применением различных облицовочных материалов: структурной штукатурки, (с утеплителем и без), сайдингом (пластиковый или металлосайдинг), фиброплитами, кирпича.

 
6 Избранные
проекты

Доставка проектов по России: Москва (Московская область), Санкт-Петербург (Ленинградская область), Краснодар, Ростов-на-Дону, Ставрополь, Сочи, Волгоград, Новосибирск, Белгород, Брянск, Воронеж, Саратов, Хабаровск, Астрахань, Нальчик, Владикавказ, Екатеринбург, Тюмень, Самара, Нижний Новгород, Казань, Пермь, Уфа, Челябинск, Красноярск, Ханты-Мансийск, Иркутск, Курган, Оренбург, Омск, Томск, Барнаул, Новокузнецк, Кемерово, Абакан, Чита, Якутск, Южно-Сахалинск, Петропавловск-Камчатский и страны ближнего зарубежья: Белоруссия, Украина, Казахстан